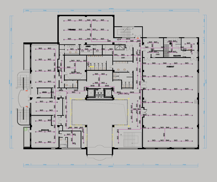
消防设计——自动喷淋系统设计
作者:admin 添加时间:2014-07-20 11:20
消防喷淋系统是一种消防灭火装置,是目前应用十分广泛的一种固定消防设施,它具有价格低廉、灭火效率高等特点。根据功能不同可以分为人工控制和自动控制两种形式。系统安装报警装置,可以在发生火灾时自动发出警报,自动控制式的消防喷淋系统还可以自动喷水并且和其他消防设施同步联动工作,因此能有效控制、扑灭初期火灾。


相关资讯
- 08-06消防系统安装时需要依据哪些规范
- 05-21建筑消防安装工程施工验收检查哪些
- 02-252021年消防工程公司的消防电话系统要
- 02-252021年消防改造公司的消防接线箱要求
- 02-252021年消防改造公司的消防联动控制要
- 09-01消防工程施工中火灾报警系统布线规
- 09-01消防改造工程中的消防联动安全施工
- 08-03大型商场安装挡烟垂壁需要注意五个
- 08-03建筑安装挡烟垂壁的防烟分区设计规
- 08-03大型商场/展览馆内部装修设计要求






